全校師生:
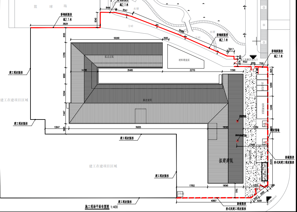
改善辦學保障條件—良鄉校區健康驛站工程于2023年7月21日—10月31日實施。施工主要范圍為良鄉校區教學區商學院東南側預留發展用地內(詳細區域見示意圖)。施工內容為健康驛站及附屬配套工程新建。
施工期間將嚴格執行國家和學校安全文明施工管理措施。因施工需要,屆時上述區域周圍將設立圍擋,進行封閉管理。請各部門于施工前將樓內相關物品進行騰挪,施工現場封閉后,場內所有物品將作為建筑垃圾處理。施工期間,將有大型貨車、吊車及施工車輛進出。請全校師生遠離施工區域,注意安全,請勿進入圍擋及警戒線以內,請勿在圍擋附近停放車輛。
由此給您帶來的不便,敬請諒解!
現場負責人:牛偉星 蒲老師
聯系方式: 13911704920 13911704920
校園建設處 保衛處
2023年7月19日

