尊敬的老師、親愛的同學們:
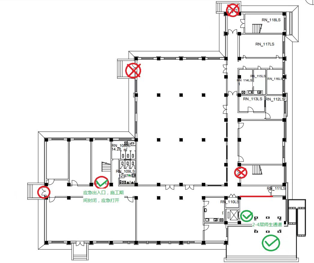
改善辦學保障條件-良鄉校區教學區智慧食堂改造項目于2023年7月12日至8月31日實施。施工主要范圍為良鄉校區教學區師生服務中心一層食堂及周邊設施(詳細區域見示意圖)。施工內容為包括拆除工程、室外工程改造、室內裝飾裝修工程及門窗工程改造、電氣工程、給排水工程、通風空調工程、消防改造等。
施工期間將嚴格執行國家和學校安全文明施工管理措施。因施工需要,屆時上述區域周圍將設立圍擋,進行封閉管理。施工期間,將有大型貨車、吊車及施工車輛進出。請全校師生遠離施工區域,注意安全,請勿進入圍擋及警戒線以內,請勿在圍擋附近停放車輛。
施工期間,前往2-4層的師生可從東南側通行。由此給您帶來的不便,敬請諒解!

現場負責人:王經理 張老師 張經理
聯系方式:18610918516 15001063203 18511793148
公共事務處
保衛處
2023年7月10日
